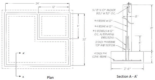
Measure the quantities of the following items in the following drawing: Do not round the numbers in the middle of calculation. Write two decimal places to show the numbers used in your calculations procedures.
Footing
Concrete
Formwork
Wall
Concrete
Formwork

2. Measure the quantities of the following items in the following drawing: Do not round the numbers in the middle of calculation. Write two decimal places to show the numbers used in your calculations procedures. Make sure that the unit of this drawing is millimeter.
Wall
Concrete
S.O.G.
Concrete
Roof
Concrete
